Leybourne
Crescent


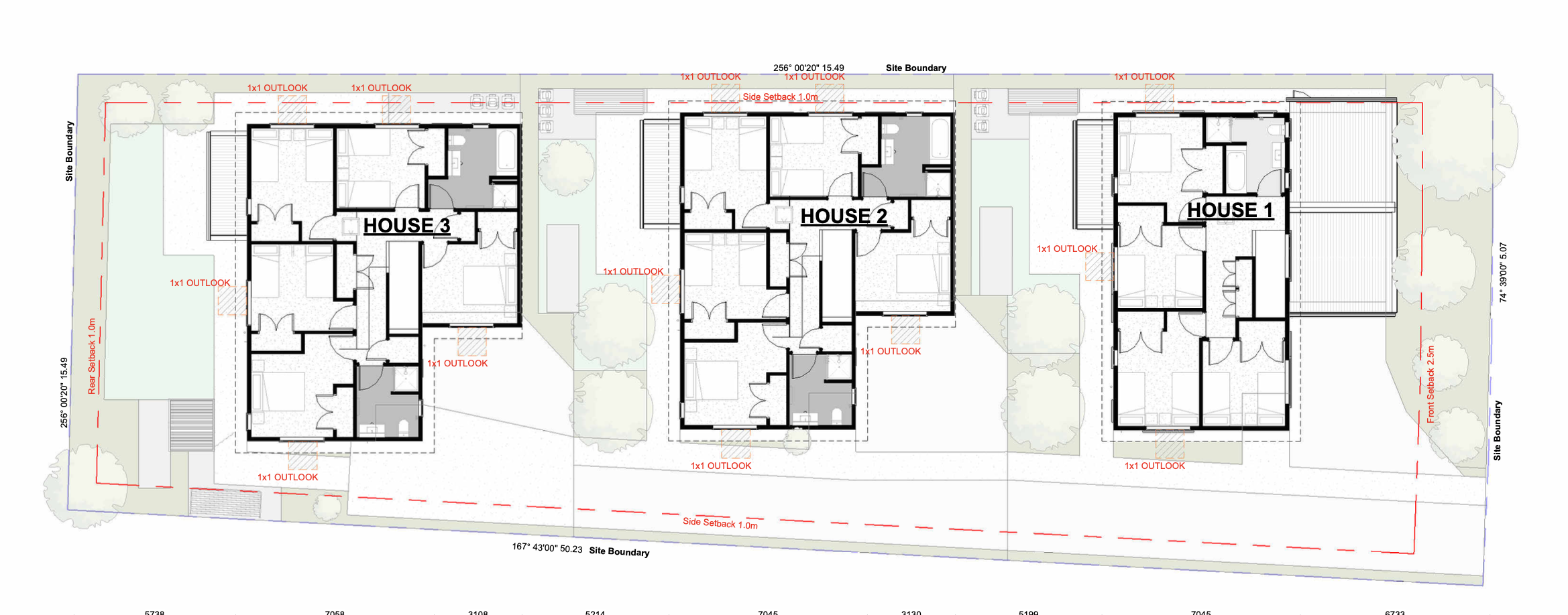
95 Leybourne Circle
Glen Innes, Auckland

Year: 2025


Architect: Hierachy Group

Main Contractor: Miles Construction

Services: Plumbing

The project involved plumbing installations across a three-house subdivision, focusing on seamless integration with site layouts and future-proofed systems. All works were designed for reliability, low maintenance, and adherence to current residential building codes.

Highlights:

3 House Lot Subdivision


Previous
Previous

AWRCF

Next
Next

Roulston Street